MOZ Evi
Şehir
İstanbul
Yıl
2021
Alan
3.000 m²
Takım
Cüneyt Ara, Erdem Keskin, Ender Yolcu, Suat Kılıç, Barış Güler, Canan Pervis, Buse Gülmez
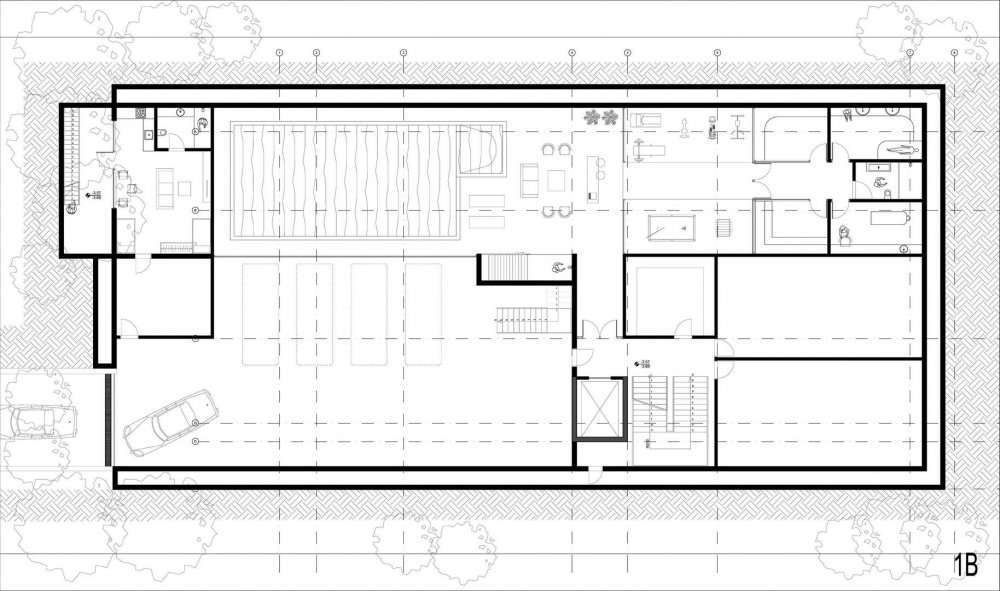
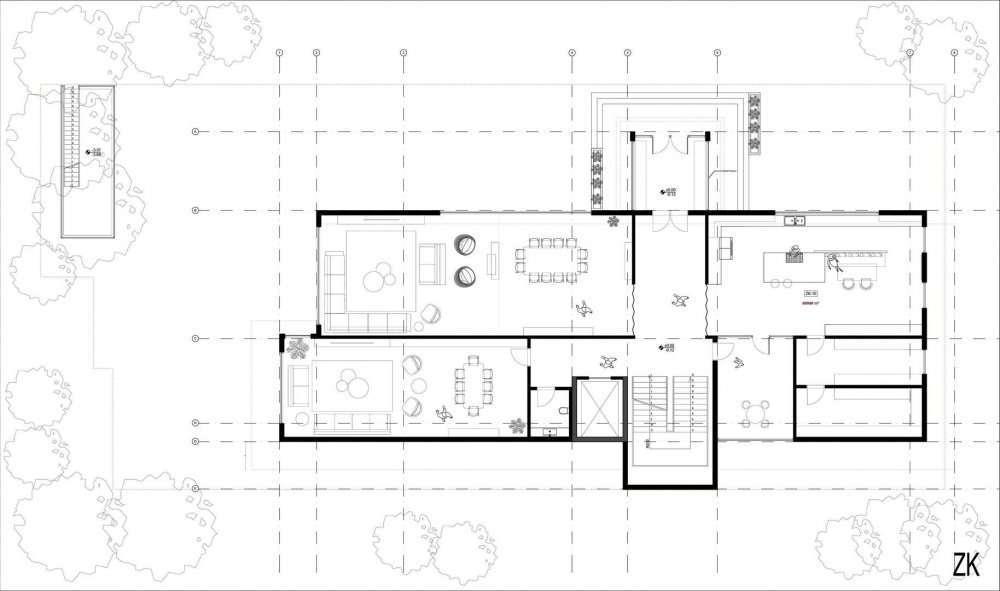
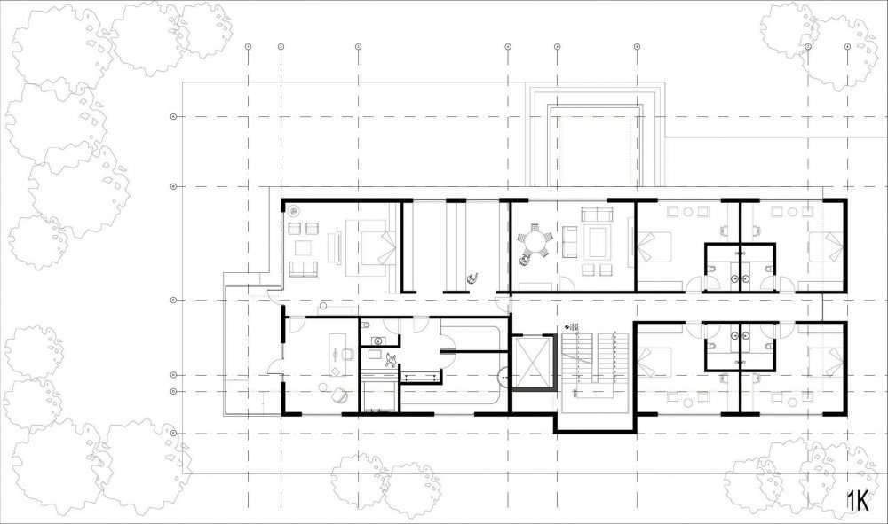
MOZ Evi, Büyükçekmece’de yer alan 1 Bodrum, Zemin ve 1.kattan oluşan 2500 m2’lik toplam inşaat alanına sahip bir konut projesidir. Mevcut ağaçlar ve parsel sınırının belirlediği alan çerçevesinde, eğim faktörü ve yakınında bulunan yapılar göz önünde bulundurularak yapının yeri belirlenmiştir.
Ağırlıklı olarak taş kullanılan cephede, genişçe tasarlanan saçakların altları ve panjurlar ahşap olarak dizayn edilerek sıcaklık sağlanmıştır. Cephe taşlarındaki şişirme ve hareketler ile dinamiklik katılan projede ‘modern klasik’ bir etki yakalanmıştır.










