10
02
01
06
04
08
ALPKAYAFOTOGRAF5
ALPKAYAFOTOGRAF6

Alpkaya Galeri

Şehir

İstanbul

Yıl

2021

Alan

700 m²

Takım

Cüneyt Ara, Erdem Keskin, Ender Yolcu, Barış Güler, Canan Pervis, Suat Kılıç

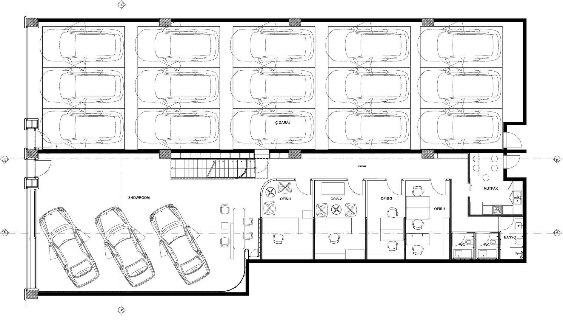
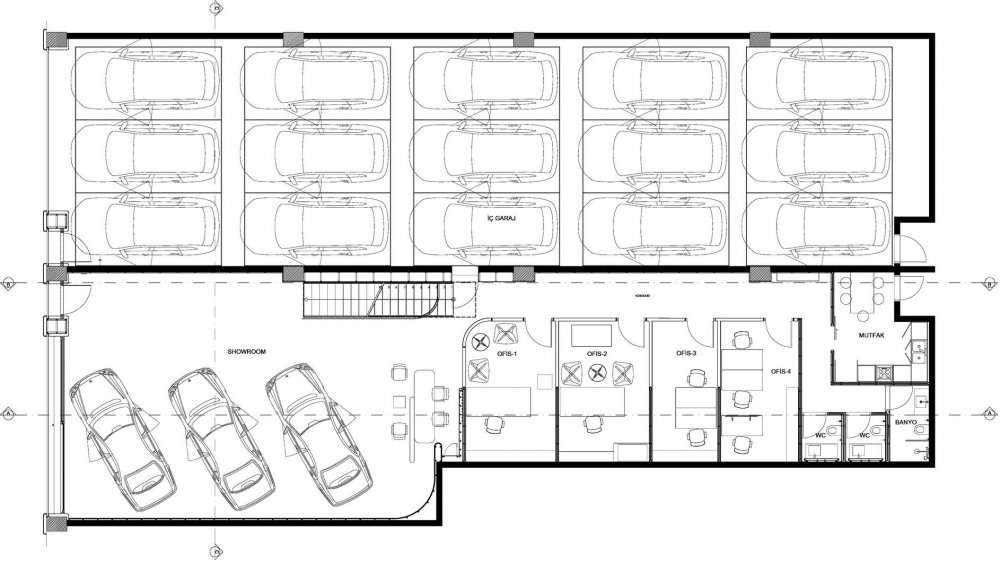
Alpkaya Otomobil Galerisi, İstanbul’da yer alan, showroom ve araç fotoğraf stüdyosu ile birlikte 8 kişilik çalışan alanına sahip bir projedir. Müşterinin karşılanacağı resepsiyon, araçların sergilenebileceği showroom, portföy fotoğraflarının çekileceği stüdyo ve çalışanlar için ofis birimlerini kapsayan projede tüm mahaller zemin beton parlatma olarak planlanarak kesintisiz bir görünüş elde edilmiştir. Ofis girişindeki showroomda duvarlarda paslanmaz satine sac büküm kullanılarak marka kimliği ve karakteri güçlendirilmiştir. Yer yer kullanılan RGB aydınlatmalar ve zemine hemyüz gömülen lineer tek parça ışık bandı ile görsel etki kuvvetlendirilmiştir. Araç fotoğraf stüdyosunda ise 360 derece dönebilen platform planlanarak otomobillerin her açıdan video ve fotoğrafları çekilebilmesi sağlanmıştır.